Handel


Heilbronn | Ausstellungs- und Bürogebäude

BAUWERK-4 GRATULIERT UNSERER MITARBEITERIN, LEA FUCHS, ganz herzlich zu Ihrer hervorragenden Technikerarbeit an der TS Aalen:

NEUBAU EINES AUSSTELLUNGS- UND BÜROGEBÄUDES IM GEWERBEGEBIET HEILBRONN

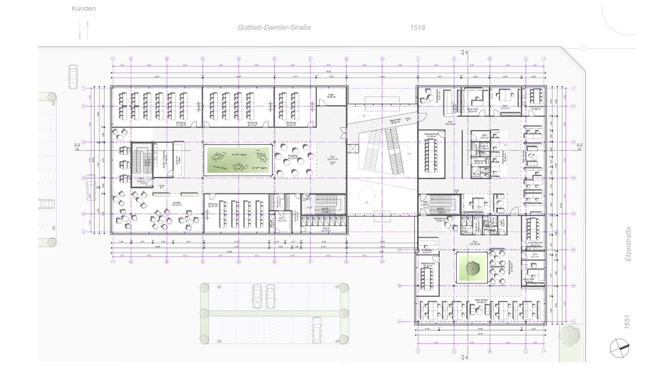
Auf das an zwei Straßenzügen angrenzende Grundstück sollte an eine bestehende Lagerhalle ein Ausstellungs- und Bürogebäude mit Schulungsräumen geplant werden.
Die gute Lage ermöglichte ein repräsentatives Gebäude, das sich von der vorhandenen Bebauung abhob: Um das rechteckige Grundstück von beiden Straßen gut zu präsentieren, wurde eine L-Form gewählt. Das dreigeschossige Gebäude hat eine Pfosten-Riegel-Fassade aus Glas, wobei die beiden Obergeschosse über das EG auskragen. Dort schützt eine zusätzlich vorgehängte Streckmetallfassade mit elektrisch gesteuerten Hebefaltläden vor Sonne und vor Blicken.
So ergibt sich eine aufgelockerte Fassade, die je nach Nutzerverhalten unterschiedlich erscheint. Die Büro- und Schulungsräume befinden sich in den beiden Obergeschossen, die über Freitreppen vom offen gestalteten Foyer aus erreicht werden. Die durch die Glasfassaden sehr hellen und großzügigen Ausstellungsflächen sind im Erdgeschoss angeordnet. Zwei Lichthöfe im Inneren des Gebäudekomplexes sorgen zusätzlich für eine gute Belichtung sowie eine angenehme und freundliche Arbeitsatmosphäre.

Schwerpunkte der Technikerarbeit waren in folgenden Bereichen:

Entwurfs-und Ausführungsplanung
Rohbaukonstruktion
Rohbau-LV
Gebäudetechnik

Die Arbeit hat Lea Fuchs zusammen mit ihrer Kommilitonin Anette Schmidt bearbeitet.