öffentlich


Essingen | Rohrlagerhalle

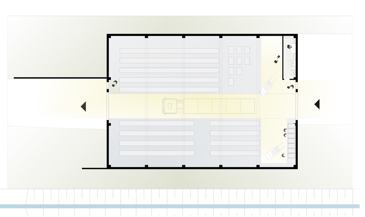
Neubau einer Rohrlagerhalle
Die neue Lagerhalle der Landeswasserversorgung in Essingen dient der Aufbewahrung spezieller Rohre für die Trinkwasserleitungen. Im Innenraum sind 2 Krananlagen mit jeweils 10t Kapazität vorgesehen. Ein großes zentrales Oberlicht sorgt für natürliche Belichtung. Die Halle wird in Fertigteil-Bauweise errichtet, um eine schnelle Bauzeit zu ermöglichen. Isopaneele an der Fassade und eine Photovoltaik-Anlage auf dem Dach gewährleisten eine gute Energiebilanz.

Planung 2020/21 | 675 m² BGF