Industrie


Aalen | Verwaltungsgebäude

Neubau eines Verwaltungsgebäudes

Realisation

2020

BGF (in m²)

6050

Anzahl Mitarbeiter

470

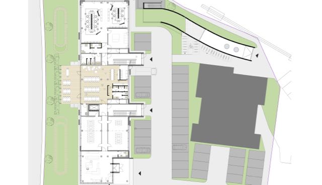
Lageplan


Der schmale lange Riegel des Verwaltungstraktes schließt das inhomogene Betriebsgelände optisch ab und fungiert als Entree und Verbindungsstück zum Werk. Die Erschließung erfolgt auf der Ostseite. Ein prominenter Eingang weist in das Gebäude.

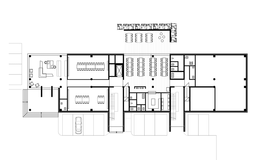
Grundriss


Im Erdgeschoss befinden sich neben Büro- und Lagerräumen auch zwei große Besprechungszimmer mit modernster Medientechnik. Aufenthaltsräume mit Cafeteria für die Mitarbeiter sind im 1. OG vorgesehen. In zwei weiteren Geschossen sind ebenso Büro- und Besprechungszimmer angeordnet.

Ansicht West


Das Hauptgebäude zeichnet sich durch seine ruhige, klare Fassade aus. Lange Fensterbänder sorgen für gute Belichtung der flexiblen, offenen Büros im Innern. Die angesetzten Gebäudeteile im Norden und Süden beleben den rechteckigen Kubus.

Ansicht SW


Im Westen schließt an die Cafeteria eine Terrasse für die Mitarbeiter mit hoher Aufenthaltsqualität an. Der farblich- und durch Materialwechsel abgesetzte Kubus im Süden ist für die Geschäftsleitung vorgesehen.

Schnitt


Die vertikale Erschließung durch zwei Treppenhäuser befindet sich auf der Ostseite des Gebäudes und teilt es in drei unterschiedlich große, flexibel nutzbare Bereiche.